Eramu Harjumaal
| Tellija | Eraisik |
| Projekt | Arhitektuur |
| Asukoht | Harku vald, Harjumaa |
| Seis | Valmis |
| Pindala | 255m2 |
| Fotod | Terje Ugandi |
| Aasta | 2016 |
Põnev ja vastuoluline krunt on elamule päris keeruline alus. Esmapilgul jäävad silma kaunid vaated, külluslik kõrghaljastus ja haruldane võimalus reljeefi kasutada. Paraku on järsk nõlv langusega kirde suunas, hommiku- ja õhtupäike jääb puude varju ning merevaade avaneb krundi keskosast otse põhjasuunas.
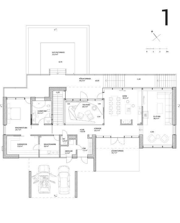
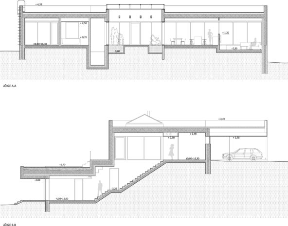
Pikk ja kitsas hoonemaht võimaldab ühtlasi häid vaateid põhja poole ja samas piisavalt päikesevalgust lõuna poolt. Peamised eluruumid on paigutatud krundi keskele parimale vaatesuunale. Kaks korruse tasapinda on paigutatud nõlva järgi nihkesse, mitte üksteise kohale. Tekib ühekorruseline maja, mis astmeliselt järgib reljeefi, mõlemalt tasandilt on otse pääs õue maapinnale. Madalama osa katusel on terrass ja katusehaljastus. Laiad ja lauged välistrepid seovad maja orgaaniliselt maastikku. Maja lõunaküljel on päikeseterrass, mis avab eluruumid maja ette ülemisse aeda.
Peamajale lisaks on alumises aias tiigi kaldal väike saunamaja koos lehtlaga.












