Orjaku sadama abihoone
| Tellija | Käina Vallavalitsus |
| Projekt | Arhitektuur |
| Asukoht | Orjaku, Hiiumaa |
| Seis | Valmis |
| Pindala | 100m² |
| Fotod | Terje Ugandi |
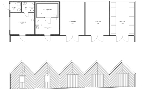
Sadama abihoone koosneb viiest kokku ehitatud hoonemahust, sisaldades kaluritele ja sadamale vajalikke ruume. Hoone konstruktsiooniks on puitkarkass. Välisviimistluse diagonaalne laudis annab väga lihtsale hoonele omanäolise ilme ja konstruktsioonile vajaliku stabiilsuse. Laudis on immutatud tumeda tõrvaõliga. Hoone ees on kogu pikkuses katusealune. Mere poolt esimene maht on kalurite olme- ja pesuruumide jaoks. Otsaaknast anaveb vaade kalasadamale. Teine hoonemaht on kala töötlemise ja hoiu jaoks. Külmkamber ehitatakse eraldi ruumina valmiselementidest. Kolmas maht on kalurite kuur, järgmine sadama kuur ja kõige maantee poolsem prügikonteinerite kuur. Prügikuuri eraldav sisesein on tuleohutusnõuete tõttu laotud betoonplokkidest.
Osales näitusel “VÄIKE 2010-2012″







