Pärnu Sütevaka Humanitaargümnaasium
| Tellija | Pärnu Sütevaka Humanitaargümnaasium |
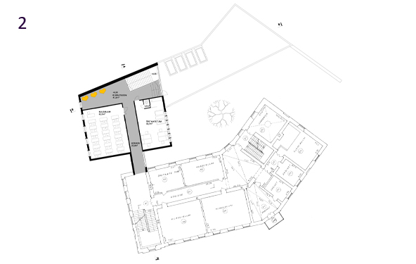
| Projekt | Arhitektuur |
| Asukoht | Pärnu |
| Seis | Arhitektuurikonkurss |
| Pindala | 700m² |
Pärnu Sütevaka Humanitaargümnaasiumi ajalooline puhasvuuk-tellislaoga hoone on algselt ehitatud 1881. aastal õllevabrikant Heinrich Puls’ile elumajaks. 2012. aastal avaliku arhitektuurikonkursi raames esitatud töös lähtusime juurdeehituse projekteerimisel ajaloolise hoone arhitektuurist, nii akende suuruse, rütmi kui ka hoone viimistlusmaterjalist – tellisest. Uus hoone on oma sisult kui vormilt lakooniline, astudes väärikalt tagasi, lastes ajaloolisel hoonel esile tulla.













