Tallinna Lennujuhtimiskeskuse juurdeehitus
| Tellija | Lennuliiklusteeninduse AS |
| Projekt | Arhitektuur ja sisekujundus |
| Asukoht | Tallinn |
| Seis | Valmis |
| Pindala | 1100m² |
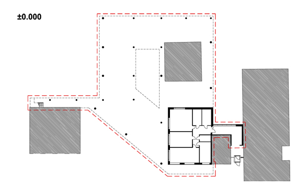
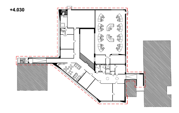
Juurdeehitus töötab ühenduslülina olemasoleva administratiivhoone ja lennujuhtimistorni vahel ning on rajatud maapinnast 4m kõrgusele tõstetud 1-korruselise galeriina. Hoone on paigutatud trafojaama peale. Liikumine hoones toimub ümber hoone keskel asuva sisehoovi – valgusšahti, mis tagab piisava loomuliku valguse ka hoone koridorides.



























