Tärkma sadamahoone
| Tellija | MTÜ Tärkma Sadama Selts |
| Projekt | Arhitektuur |
| Asukoht | Tärkma, Hiiumaa |
| Seis | Valmis |
| Pindala | 50m² |
| Aasta | 2013 |
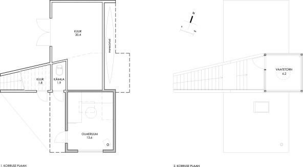
Tärkma sadamahoone on plaanitud kalasadama teenindamiseks. Põhiosa hoonest moodustab kalurite kuur, lisaks on olmeruum kaluritele ja puhkajatele ning kõigile huvilistele mõeldud vaatetorn.
Sadamahoone on mõeldud maamärgina nii mere kui maa poolt vaadates. Ümbritsevast lagedast madala haljastusega rannamaastikust eristub kummaline skulpturaalne punane maht väga selgesti. Lisaks vajalike funktsioonide täitmisele on hoone eesmärgiks tekitada elamuslik keskkond ja luua sadamale meeldejääv isikupära.
Hoone põhimaht on lihtne ühepoolse kaldkatuse ja ristkülikulise põhiplaaniga. Sellesse lõikub ülalt laienev trepp ja konsoolne vaatetorn. Lisaks on sisselõiked varjualuste tekitamiseks uste ees ja maja taga süstade hoidmiseks.
Mere poolt esimene maht on kalurite ja külaliste olmeruum. Otsaaknast avaneb vaade sadama basseinile. Trepi alune on kasutatud väikese kuuri ja käimla jaoks. Maja tagumine osa on kalurite kuur. Teisel korrusel on vaatetorn akendega igasse suunda.







